Descriptif
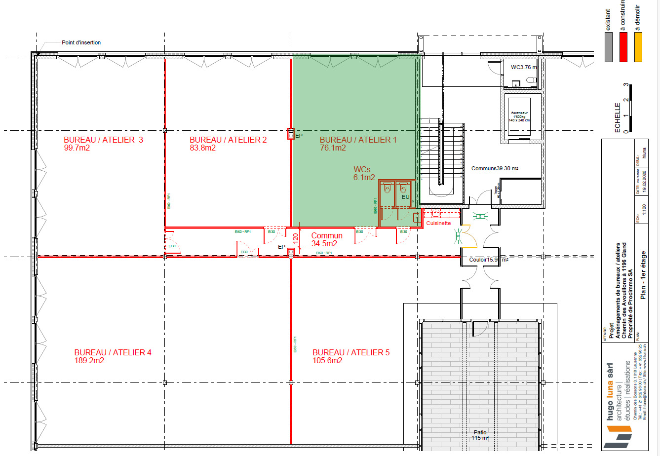
Pensé pour répondre aux besoins des entreprises et indépendants recherchant un espace fonctionnel et flexible, cet atelier Plug & Play de 76.1 m² offre un environnement de travail pratique et professionnel.
Situé dans un bâtiment moderne, l’espace permet une installation rapide et une grande flexibilité d’utilisation, idéal pour une activité artisanale légère, créative ou administrative.
Les toilettes et la kitchenette sont à disposition en commun, offrant un confort pratique au quotidien pour les utilisateurs du bâtiment.
Cet atelier constitue une solution idéale pour développer votre activité dans un cadre professionnel accessible et bien situé.
Aménagement
- Affectation : Atelier / activité artisanale légère / bureau
- Surface : 76.1 m²
- Type : Plug & Play
- WC communs
- Kitchenette commune
Conditions de location
- Loyer mensuel : CHF 1’745.–
- Charges : en sus
Stationnement et mobilité
- Places de parc extérieures et/ou intérieures à disposition
- Bornes de recharge pour véhicules électriques
- Espace de stationnement pour vélos
Situation géographique
La localisation est idéale avec un accès rapide aux axes routiers principaux, permettant de rejoindre facilement les centres économiques de la région. Les transports publics et les commodités se trouvent également à proximité, assurant une excellente accessibilité pour les collaborateurs et visiteurs.
Disponibilité
À convenir.
Découvrez le projet SPARK, une véritable étincelle de créativité pour votre entreprise, sur www.spark-gland.ch, et contactez-nous pour organiser une visite.
Disclaimer : les visuels, photos et informations présentés sont non contractuels et fournis à titre illustratif.
Commodités
Environnement
- Gare
- Arrêt de bus
- Entrée/sortie autoroute
Extérieur
- Place(s) de parc couverte(s)
- Parking






